居住用物件Sale
- HOME
- 居住用物件
3駅3路線利用可能な利便性に優れた立地
長期修繕計画書有・管理体制良好
新宿御苑向き・3階部分 陽当たり・眺望良好
長期修繕計画書有・管理体制良好
新宿御苑向き・3階部分 陽当たり・眺望良好
物件写真・間取り
物件概要
| 物件名 | 【ジェイパーク御苑内藤町 】 |
|---|
| 交通機関 | 東京メトロ丸ノ内線 新宿御苑前駅 徒歩 8分 JR総武線 千駄ヶ谷駅 徒歩 9分 都営大江戸線 国立競技場駅 徒歩 9分 |
|---|
| 所在地 | 東京都新宿区内藤町1-7 |
|---|
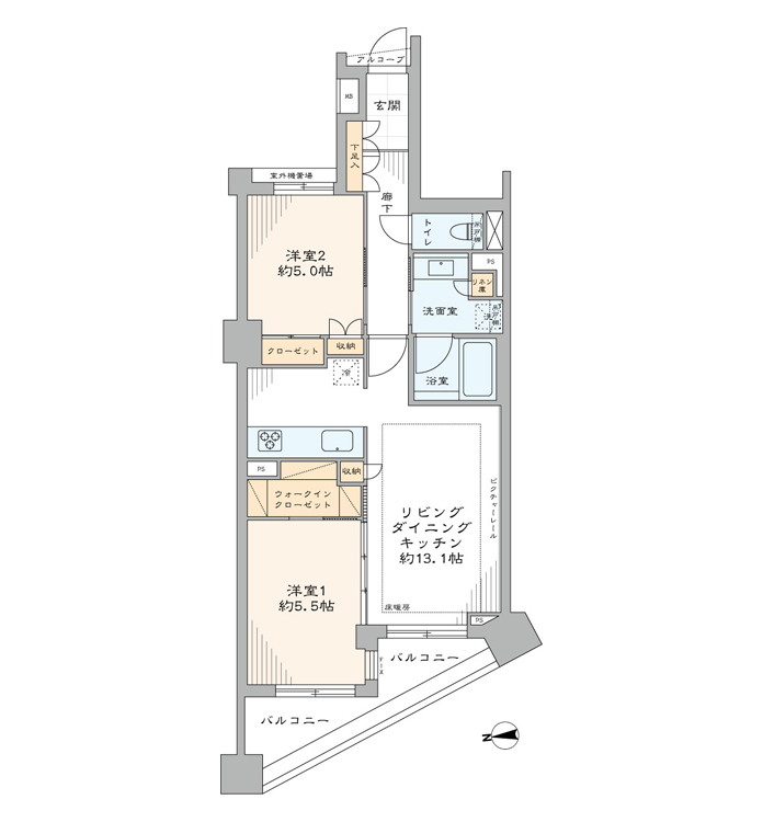
| 間取り詳細 | 2LDK+WIC |
|---|
| 土地権利 | 所有権 |
|---|
| 建物構造 | SRC |
|---|
| 階 / 階数 | 3/12 |
|---|
| 築年月 | 2001年08月 |
|---|
| 用途地域 | 近隣商業地域 |
|---|
| 駐車場 | 空無 30,000円~38,000円/月 |
|---|
| 地目 | 宅地 |
|---|
| 現況 | 空 |
|---|
| 管理費 | 10740円 |
|---|
| 修繕積立金 | 22430円 |
|---|
| 引渡し | 相談 |
|---|
| 設備 | 都市ガス・公営水道・本下水・EV・オートロック・宅配ボックス・2駅利用可能・トイレ新規交換・ペット飼育可・光ファイバー導入済(共用部まで)・公園至近・浴室換気乾燥機・眺望良好・緑多い住環境・食器洗い機 駐輪場 |
|---|
| 備考 | ペット飼育可(1住戸1匹・ペット飼育細則有) 事務所使用不可 駐輪場:空有(300円/月) ・ バイク置場:空無(2,000円/月) インターネット(テンフィートライト・NTT) |
|---|
| 取引態様 | 媒介 |
|---|
| 物件番号 | K250 |
|---|
| 情報登録日 | 2025年09月02日 |
|---|
| 情報更新日 | 2025年10月02日 |
|---|




