居住用物件Sale
- HOME
- 居住用物件
南西向き・3階部分 陽当たり・通風良好
収納豊富なWIC付き
2023年共用部大規模修繕工事実施
収納豊富なWIC付き
2023年共用部大規模修繕工事実施
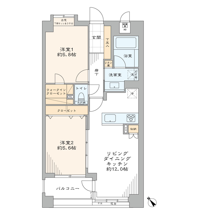
物件写真・間取り
物件概要
| 物件名 | 【セザール市谷田町】 |
|---|
| 交通機関 | JR中央総武緩行線・東京メトロ有楽町線・東京メトロ南北線 市ヶ谷駅 徒歩 5分 東京メトロ東西線・東京メトロ南北線 飯田橋駅 徒歩 7分 |
|---|
| 所在地 | 東京都新宿区市谷田町3-21-3 |
|---|
| 間取り詳細 | 2LDK+WIC |
|---|
| 土地権利 | 所有権 |
|---|
| 階 / 階数 | 3/5 |
|---|
| 築年月 | 2000年09月 |
|---|
| 用途地域 | 第一種住居地域 |
|---|
| 駐車場 | 空無 33000円/月 |
|---|
| 地目 | 宅地 |
|---|
| 現況 | 空 |
|---|
| 管理費 | 16300円 |
|---|
| 修繕積立金 | 15860円 |
|---|
| 引渡し | 相談 |
|---|
| 設備 | 都市ガス・公営水道・本下水・EV・オートロック・宅配ボックス |
|---|
| 備考 | ペット飼育可(使用細則有) 事務所使用不可 駐輪場:空有(無償・原則1住戸1台の駐輪区画有) バイク置場:無 ・ インターネット(NTTBフレッツ) |
|---|
| 取引態様 | 媒介 |
|---|
| 物件番号 | K221 |
|---|
| 情報登録日 | 2025年05月27日 |
|---|
| 情報更新日 | 2025年07月30日 |
|---|




















