居住用物件Sale
- HOME
- 居住用物件
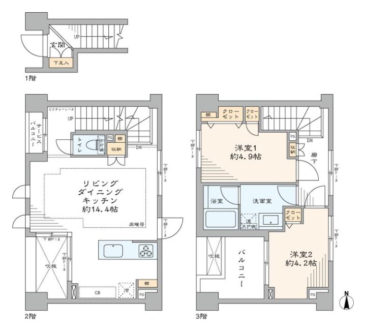
人気のメゾネットタイプ・専有面積66m²
第一種低層住居専用地域の閑静な住宅街
廊下・全室窓があり明るい住戸設計
第一種低層住居専用地域の閑静な住宅街
廊下・全室窓があり明るい住戸設計
物件写真・間取り
物件概要
| 物件名 | 【オープンレジデンス目白】 |
|---|
| 交通機関 | JR山手線 目白駅 徒歩 8分 JR山手線 池袋駅 徒歩 16分 |
|---|
| 所在地 | 東京都豊島区目白4-19-4 |
|---|
| 土地権利 | 所有権 |
|---|
| 建物構造 | RC |
|---|
| 階 / 階数 | 1,2,3/3 |
|---|
| 築年月 | 2012年08月 |
|---|
| 用途地域 | 第一種低層住居専用地域 |
|---|
| 駐車場 | 無 |
|---|
| 地目 | 宅地 |
|---|
| 現況 | 空 |
|---|
| 管理費 | 11520円 |
|---|
| 修繕積立金 | 15100円 |
|---|
| 引渡し | 相談 |
|---|
| 設備 | オール電化・公営水道・本下水・オートロック・宅配ボックス・CATV導入済み・光ファイバー導入済(共用部まで)・床暖房・浴室換気乾燥機・トイレ新規交換・買物便利 |
|---|
| 備考 | ペット飼育可(2匹まで・使用細則有) 事務所使用不可 駐輪場:空有(200円~300円/月・1台目優先権有) バイク置場:空無(1,000円/月) インターネット(UCOM光)・CATV(J:COM) 修繕積立金総額:25,874,575円(2024年8月現在) 固定資産税・都市計画税:150,000円(2024年度概算) その他費用内訳: 町会費500円+インターネット料1,995円 |
|---|
| 取引態様 | 媒介 |
|---|
| 物件番号 | K211 |
|---|
| 情報登録日 | 2025年03月18日 |
|---|
| 情報更新日 | 2025年05月02日 |
|---|



















