居住用物件Sale
- HOME
- 居住用物件
歴史ある風情漂う街ー神楽坂ー
東向き・6階部分 陽当たり良好
東向き・6階部分 陽当たり良好
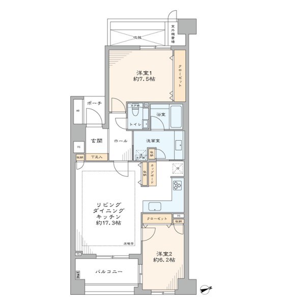
物件写真・間取り
物件概要
| 物件名 | 神楽坂トワイシアヒルサイドレジデンス |
|---|
| 交通機関 | 東京メトロ東西線 神楽坂駅 徒歩 4分 JR中央総武線 飯田橋駅 徒歩 9分 東京メトロ東西線 飯田橋駅 徒歩 7分 |
|---|
| 所在地 | 東京都新宿区白銀町6-1 |
|---|
| 建物構造 | RC |
|---|
| 階 / 階数 | 6/12 |
|---|
| 築年月 | 2004年02月 |
|---|
| 用途地域 | 第二種中高層住居専用地域 |
|---|
| 駐車場 | 空有 29,000円~39,000円/月 |
|---|
| 地目 | 宅地 |
|---|
| 現況 | 空 |
|---|
| 管理費 | 10200円 |
|---|
| 修繕積立金 | 13200円 |
|---|
| 引渡し | 相談 |
|---|
| 設備 | 都市ガス・公営水道・本下水・EV・オートロック・宅配ボックス・CATV導入済み・トイレ新規交換・ 光ファイバー導入済(共用部まで)・床暖房・浴室換気乾燥機・食器洗い機 |
|---|
| 備考 | ペット飼育可(ペット飼育細則有) 事務所使用不可 駐輪場:空有(100円~500円/月) ・ バイク置場:空無(1,000円/月) インターネット(つなぐネット) ・ CATV(J:COM港新宿) 修繕積立金総額:427,470,950円(2023年11月現在) 固定資産税・都市計画税:176,544円(2024年度概算) そ の 他 : 2,058円/月(インターネット設備維持費・町会費負担金・ホームセキュリティ料) |
|---|
| 取引態様 | 媒介 |
|---|
| 物件番号 | K189 |
|---|
| 情報登録日 | 2025年01月28日 |
|---|
| 情報更新日 | 2025年07月30日 |
|---|




















