居住用物件Sale
- HOME
- 居住用物件
小石川後楽園の豊かな緑を望む眺望
9路線4駅利用可/4駅とも徒歩10分圏内の利便性
屋上テラス(スカイビューコート・予約制)
9路線4駅利用可/4駅とも徒歩10分圏内の利便性
屋上テラス(スカイビューコート・予約制)
物件写真・間取り
物件概要
| 物件名 | コートレジデントタワー |
|---|
| 交通機関 | JR中央総武線 水道橋駅 徒歩 4分 都営大江戸線 飯田橋駅 徒歩 5分 都営三田線 水道橋駅 徒歩 6分 |
|---|
| 所在地 | 東京都文京区後楽1-4-11 |
|---|
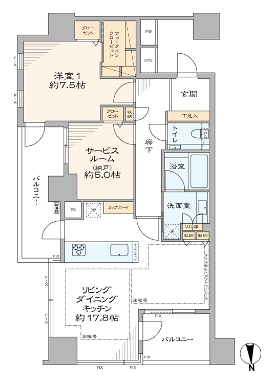
| 間取り詳細 | 1SLDK+WIC |
|---|
| 土地権利 | 所有権 |
|---|
| 建物構造 | RC |
|---|
| 階 / 階数 | 8/21 |
|---|
| 築年月 | 2007年01月 |
|---|
| 用途地域 | 商業地域 |
|---|
| 駐車場 | 空無 36,000円~42,000円/月 ※1 |
|---|
| 地目 | 宅地 |
|---|
| 現況 | 空 |
|---|
| 管理費 | 32410円 |
|---|
| 修繕積立金 | 34000円 |
|---|
| 引渡し | 相談 |
|---|
| 設備 | 都市ガス・公営水道・本下水・EV・オートロック・宅配ボックス・24時間有人管理・TVモニター付インターフォン・トイレ新規交換・ペット飼育可・事務所使用可・光ファイバー導入済(共用部まで)・床暖房・浴室換気乾燥機・食器洗い機 |
|---|
| 備考 | 駐輪場:上段空有・下段空無(200円/月)※1 バイク置場:1台空有(2,000円/年)※1 インターネット(つなぐネットコミュニケーションズで全戸一括契約) 修繕積立金総額:341,517,009円(2024年2月現在) 固定資産税・都市計画税:218,500円(2023年度概算) そ の 他 : 1,862円/月(光ファイバーテレビ基本料572円・インターネット料990円・町会費300円) TVはCATV(スカパーJSAT)に対応、光ファイバーテレビ基本料が徴収されます ※1駐車場状況 2024.11.18現在 |
|---|
| 取引態様 | 媒介 |
|---|
| 物件番号 | K184 |
|---|
| 情報登録日 | 2024年12月10日 |
|---|
| 情報更新日 | 2025年07月30日 |
|---|






















