居住用物件Sale
- HOME
- 居住用物件
ビッグターミナル『池袋』駅徒歩8分
子育て環境が整った安心の文教地区
最上階・南西角部屋 陽当たり・眺望良好
子育て環境が整った安心の文教地区
最上階・南西角部屋 陽当たり・眺望良好
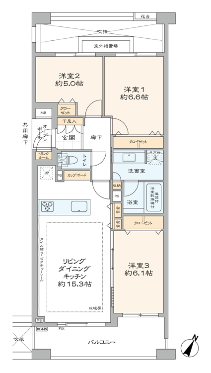
物件写真・間取り
物件概要
| 物件名 | 【ブリリアガーデン池袋 】 |
|---|
| 交通機関 | JR山手線・JR埼京線・東京メトロ副都心線・東京メトロ有楽町線・東京メトロ丸ノ内線・東武東上線 池袋駅 徒歩 8 分 JR山手線 目白駅 徒歩 13分 |
|---|
| 所在地 | 東京都豊島区西池袋3-8-14 |
|---|
| 土地権利 | 所有権 |
|---|
| 建物構造 | RC |
|---|
| 階 / 階数 | 5/5 |
|---|
| 築年月 | 2005年10月 |
|---|
| 用途地域 | 第一種中高層住居専用地域 |
|---|
| 駐車場 | 空有 24,000円~28,000円/月 |
|---|
| 地目 | 宅地 |
|---|
| 現況 | 空 |
|---|
| 引渡し | 相談 |
|---|
| 設備 | 都市ガス・公営水道・本下水・エレベーター・オートロック・宅配ボックス・TVモニター付インターフォン・トイレ新規交換・ペット飼育可・光ファイバー導入済(共用部まで)・床暖房・浴室換気乾燥機 |
|---|
| 備考 | バイク置場:空有(800円/月) 駐輪場:空有(原則1住戸1台・200円~1,000円/月) インターネット(NTT・KDDI・NURO光) ポーチ面積 : 1.53m² 修繕積立金総額:101,347,223円(2024年8月現在) 固定資産税・都市計画税:160,792円(2024年度概算) 駐車場 3段機械式下段 全長5000mm・全幅1850mm・全高2000mm・重量2,000kg 3段機械式中段 全長5000mm・全幅1850mm・全高1550mm・重量2,000kg |
|---|
| 取引態様 | 媒介 |
|---|
| 物件番号 | K173 |
|---|
| 情報登録日 | 2024年11月29日 |
|---|
| 情報更新日 | 2025年01月23日 |
|---|






















