居住用物件Sale
- HOME
- 居住用物件
閑静なエリアに佇む低層マンション
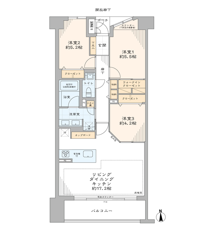
専有面積75m² 収納豊富な3LDK
専有面積75m² 収納豊富な3LDK
物件写真・間取り
物件概要
| 物件名 | 【ファミールスクエア中野坂上】 |
|---|
| 交通機関 | 東京メトロ丸ノ内線・都営大江戸線 中野坂上駅 徒歩 3分 |
|---|
| 所在地 | 東京都中野区中央1-34-1 |
|---|
| 間取り詳細 | 3LDK+WIC |
|---|
| 土地権利 | 所有権 |
|---|
| 建物構造 | RC |
|---|
| 階 / 階数 | 2/5 |
|---|
| 築年月 | 2001年02月 |
|---|
| 用途地域 | 第一種中高層住居専用地域 |
|---|
| 駐車場 | 空有 20,000円~34,000円/月 ※空要確認・高さ2,000㎜まで・その他サイズ制限有 |
|---|
| 地目 | 宅地 |
|---|
| 現況 | 空 |
|---|
| 管理費 | 11500円 |
|---|
| 修繕積立金 | 32063円 |
|---|
| 引渡し | 相談 |
|---|
| 設備 | 都市ガス・公営水道・本下水・エレベーター・オートロック・宅配ボックス・TVモニター付インターフォン・床暖房・浄水器・トイレ新規交換・ペット飼育可(小型犬・猫・兎、1匹まで、細則有)・事務所使用不可 |
|---|
| 備考 | 駐輪場:空有(500円/月) ・ バイク置場:無 インターネット(伊藤忠ケーブルシステム) CATV(ジェイコム中野) 修繕積立金総額:104,497,783円(R5年4月現在) 固定資産税・都市計画税:180,900円(R5年度概算) その他の費用の内訳: 1,000 円/月(インターネット料) |
|---|
| 取引態様 | 媒介 |
|---|
| 物件番号 | K157 |
|---|
| 情報登録日 | 2024年10月18日 |
|---|
| 情報更新日 | 2024年11月18日 |
|---|



















