居住用物件Sale
- HOME
- 居住用物件
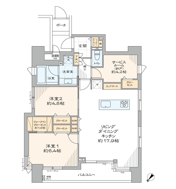
3方角部屋・5階部分 陽当たり・眺望良好
茗荷谷・後楽園・春日駅が徒歩圏内♪
デザイナーズリノベーションを施したお部屋
茗荷谷・後楽園・春日駅が徒歩圏内♪
デザイナーズリノベーションを施したお部屋
物件写真・間取り
物件概要
| 物件名 | 【エニス小石川】 |
|---|
| 交通機関 | 東京メトロ丸ノ内線 茗荷谷駅 徒歩 11分 東京メトロ南北線 後楽園駅 徒歩 11分 都営大江戸線 春日駅 徒歩 11分 |
|---|
| 所在地 | 東京都文京区春日2-18-7 |
|---|
| 間取り詳細 | 2SLDK+WIC・SIC |
|---|
| 土地権利 | 所有権 |
|---|
| 建物構造 | SRC |
|---|
| 階 / 階数 | 5/11 |
|---|
| 築年月 | 1996年12月 |
|---|
| 用途地域 | 商業地域 |
|---|
| 駐車場 | 無 |
|---|
| 地目 | 宅地 |
|---|
| 現況 | 空 |
|---|
| 管理費 | 25280円 |
|---|
| 修繕積立金 | 10600円 |
|---|
| 引渡し | 相談 |
|---|
| 設備 | 都市ガス・公営水道・本下水・エレベーター・オートロック・宅配ボックス・TVモニター付インターフォン・食器洗浄機・24時間ゴミ出し可・トイレ新規交換・ペット飼育不可・事務所使用不可 |
|---|
| 備考 | ポーチ面積 : 3.97m²(バルコニー面積は不明) 駐輪場:空有(2台まで・2,400円/年・2台目3,600円/年) バイク置場:空無(原付100ccまで・6,000円/年) インターネット(NTTフレッツ光ネクスト)・CATV 修繕積立金総額:54,921,000円(2023年11月現在) 固定資産税・都市計画税:144,889円(2024年度概算) |
|---|
| 取引態様 | 媒介 |
|---|
| 物件番号 | K156 |
|---|
| 情報登録日 | 2024年10月18日 |
|---|
| 情報更新日 | 2024年11月18日 |
|---|














