居住用物件Sale
- HOME
- 居住用物件
人気の立地「文京区音羽一丁目」アドレス
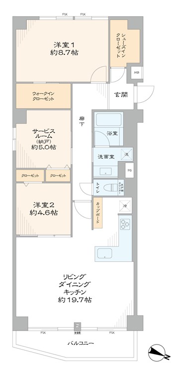
専有面積90m²超・収納豊富な2SLDK
東南西の3方角部屋 明るいLDK
専有面積90m²超・収納豊富な2SLDK
東南西の3方角部屋 明るいLDK
物件写真・間取り
物件概要
| 物件名 | 【三井音羽ハイツ】 |
|---|
| 交通機関 | 東京メトロ有楽町線 護国寺駅 徒歩 5分 東京メトロ有楽町線 江戸川橋駅 徒歩 7分 東京メトロ丸ノ内線 茗荷谷駅 徒歩 14分 |
|---|
| 所在地 | 東京都文京区音羽1-14-2 |
|---|
| 間取り詳細 | 2SLDK+WIC・SIC |
|---|
| 土地権利 | 所有権 |
|---|
| 建物構造 | SRC |
|---|
| 階 / 階数 | 6/14 |
|---|
| 築年月 | 1982年09月 |
|---|
| 用途地域 | 商業地域 |
|---|
| 駐車場 | 無 |
|---|
| 地目 | 宅地 |
|---|
| 現況 | 空 |
|---|
| 管理費 | 20333円 |
|---|
| 修繕積立金 | 18074円 |
|---|
| 引渡し | 相談 |
|---|
| 設備 | エレベーター、オートロック、TVモニター付インターフォン、トイレ新規交換 、浄水器 、浴室換気乾燥機、食器洗浄機、ペット飼育可(小型犬・猫、1住戸1匹、規約有) 、事務所使用不可、駐輪場(年額2,000円) |
|---|
| 取引態様 | 媒介 |
|---|
| 物件番号 | K121 |
|---|
| 情報登録日 | 2024年08月06日 |
|---|
| 情報更新日 | 2025年03月18日 |
|---|



















