居住用物件Sale
- HOME
- 居住用物件
山手線内側の都心好立地
東南角部屋・2面バルコニー
日当り・眺望・通風良好
東南角部屋・2面バルコニー
日当り・眺望・通風良好
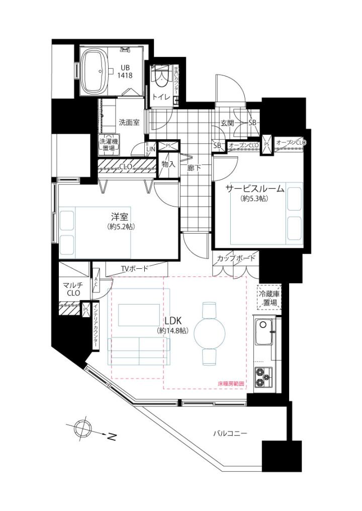
物件写真・間取り
物件概要
| 物件名 | 【クレヴィア原宿】 |
|---|
| 交通機関 | 東京メトロ副都心線 北参道駅 徒歩 3分 JR山手線 原宿駅 徒歩 9分 JR中央・総武線 千駄ヶ谷駅 徒歩 10分 |
|---|
| 所在地 | 東京都渋谷区千駄ヶ谷3-16-8 |
|---|
| 土地権利 | 所有権 |
|---|
| 建物構造 | RC |
|---|
| 階 / 階数 | 6/14 |
|---|
| 築年月 | 2015年01月 |
|---|
| 駐車場 | 空無 34,000円~45,000円/月 |
|---|
| 地目 | 宅地 |
|---|
| 現況 | 空 |
|---|
| 管理費 | 17200円 |
|---|
| 修繕積立金 | 11100円 |
|---|
| 引渡し | 相談 |
|---|
| 設備 | エレベーター、オートロック、宅配ボックス、ペット飼育可(成長時の体長約50cm以内・体重10kg程度の犬猫・1住戸2匹まで)、SOHO利用可、その他費用/インターネット使用料:1,078円/月、町会費:100円/月 |
|---|
| 取引態様 | 媒介 |
|---|
| 物件番号 | K114 |
|---|
| 情報登録日 | 2024年08月05日 |
|---|
| 情報更新日 | 2024年11月21日 |
|---|









