居住用物件Sale
- HOME
- 居住用物件
複数路線利用できる目黒駅へ徒歩3分
緑あふれる東京都庭園美術館や国立科学博物館附属自然教育園へは徒歩6分
都心に近いながらも自然を感じることのできる環境
高台につき日照・眺望良好
スケルトンからのフルリノベーション
緑あふれる東京都庭園美術館や国立科学博物館附属自然教育園へは徒歩6分
都心に近いながらも自然を感じることのできる環境
高台につき日照・眺望良好
スケルトンからのフルリノベーション
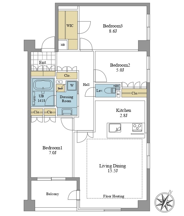
物件写真・間取り
物件概要
| 物件名 | 【ハイコート目黒花房山 】 |
|---|
| 交通機関 | JR山手線、東京メトロ南北線、東急電鉄、都営三田線 目黒駅 徒歩 3分 |
|---|
| 所在地 | 東京都品川区上大崎3‐1‐13 |
|---|
| 間取り詳細 | 3LDK+WIC |
|---|
| 土地権利 | 所有権 |
|---|
| 建物構造 | RC |
|---|
| 階 / 階数 | 4/6 |
|---|
| 築年月 | 1998年02月 |
|---|
| 用途地域 | 第一種住居地域 |
|---|
| 駐車場 | 空有 要確認 |
|---|
| 地目 | 宅地 |
|---|
| 現況 | 空 |
|---|
| 管理費 | 32240円 |
|---|
| 修繕積立金 | 28370円 |
|---|
| 引渡し | 相談 |
|---|
| 設備 | エレベーター、ペット飼育可(体長50㎝・1匹まで)、駐輪場一住戸1台0円/月、バイク置き場3,000円/月 |
|---|
| 取引態様 | 媒介 |
|---|
| 物件番号 | K067 |
|---|
| 情報登録日 | 2024年06月28日 |
|---|
| 情報更新日 | 2024年06月28日 |
|---|






