居住用物件Sale
- HOME
- 居住用物件
南向きで陽当たり良好、新規リノベーション工事済み
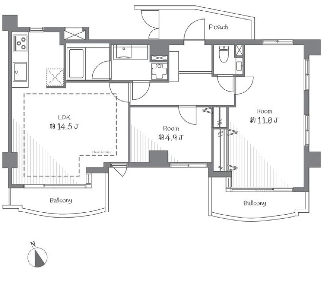
物件写真・間取り
物件概要
| 物件名 | パレロイヤルアレフ赤坂 |
|---|
| 交通機関 | 千代田線赤坂駅 徒歩 9分 都営大江戸線 青山一丁目駅 徒歩 10分 千代田線 乃木坂駅 徒歩 10分 |
|---|
| 所在地 | 東京都港区赤坂7-6-66 |
|---|
| 土地権利 | 所有権 |
|---|
| 建物構造 | RC |
|---|
| 階 / 階数 | 2/3 |
|---|
| 築年月 | 1997年07月 |
|---|
| 都市計画 | 市街化区域 |
|---|
| 用途地域 | 第一種中高層住居専用地域 |
|---|
| 駐車場 | 空有 38000円/月~ |
|---|
| 地目 | 宅地 |
|---|
| 現況 | 空 |
|---|
| 販売戸数 | 1 |
|---|
| 管理費 | 19670円 |
|---|
| 修繕積立金 | 35820円 |
|---|
| 引渡し | 即時 |
|---|
| 設備 | オートロック、防犯カメラ、角部屋で採光良好 |
|---|
| 物件番号 | K267 |
|---|
| 情報登録日 | 2026年01月17日 |
|---|
| 情報更新日 | 2026年01月17日 |
|---|


