居住用物件Sale
- HOME
- 居住用物件
—港区赤坂8丁目— 青山一丁目駅より平坦な立地
重厚な外観(2丁掛タイルと御影石)
重厚な外観(2丁掛タイルと御影石)
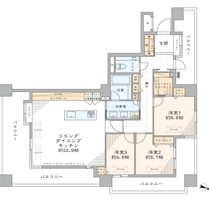
物件写真・間取り
物件概要
| 物件名 | ヴェーゼント赤坂新坂 |
|---|
| 交通機関 | 東京メトロ銀座線・東京メトロ半蔵門線・都営大江戸線 青山一丁目駅 徒歩 3分 東京メトロ千代田線 乃木坂駅 徒歩 9分 |
|---|
| 所在地 | 東京都港区赤坂8-1-9 |
|---|
| 間取り詳細 | 3LDK+WIC・SIC |
|---|
| 土地権利 | 所有権 |
|---|
| 建物構造 | RC |
|---|
| 階 / 階数 | 2/8 |
|---|
| 築年月 | 2001年03月 |
|---|
| 用途地域 | 第二種住居地域 |
|---|
| 駐車場 | 空有 38,000円~45,000円/月 |
|---|
| 地目 | 宅地 |
|---|
| 現況 | 空 |
|---|
| 管理費 | 32840円 |
|---|
| 修繕積立金 | 30650円 |
|---|
| 引渡し | 相談 |
|---|
| 設備 | 都市ガス・公営水道・本下水・EV・宅配ボックス・オートロック・CATV導入済み・トイレ新規交換・トランクルーム・両面バルコニー・光ファイバー導入済(共用部まで)・公園至近・外観タイル貼・床暖房・浴室換気乾燥機・食器洗い機・駅近・駐車場・駐輪場 |
|---|
| 備考 | ペット飼育可(規約有) 事務所使用不可 駐輪場:空有(250円/月) バイク置場:無 インターネット(NTTフレッツ)・CATV(J:COM東京) トランクルーム専用使用権付(無償) |
|---|
| 取引態様 | 媒介 |
|---|
| 物件番号 | K266 |
|---|
| 情報登録日 | 2026年01月14日 |
|---|
| 情報更新日 | 2026年01月16日 |
|---|





















