居住用途物業Sale
表参道・青山・外苑に囲まれたエリア
都心の利便性と緑溢れる住環境、代々木公園・明治神宮・国立競技場も徒歩圏
都心の利便性と緑溢れる住環境、代々木公園・明治神宮・国立競技場も徒歩圏
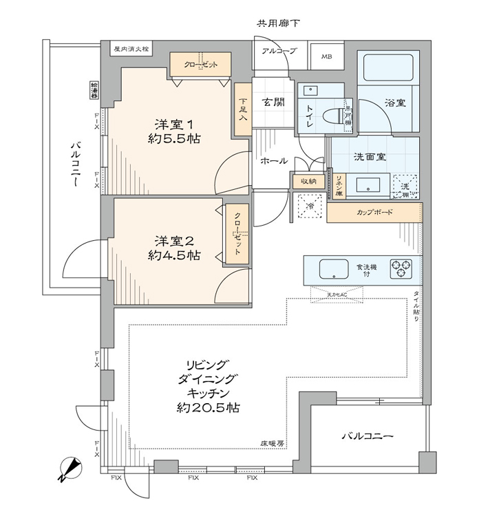
物業照片與房間佈局
樓盤詳情
| 樓盤名稱 | 【D’クラディア神宮外苑 ハイヴァリー】 |
|---|
| 交通工具 | 東京メトロ銀座線・千代田線・半蔵門線 表参道駅 徒步 9分 |
|---|
| 所在地 | 東京都渋谷区神宮前3-36-14 |
|---|
| 土地權利 | 所有權 |
|---|
| 建筑结构 | RC |
|---|
| 樓層/層數 | 4/5 |
|---|
| 建造年月 | 2002年02月 |
|---|
| 土地用途 | 一級中高層住宅區 |
|---|
| 停車場 | 無空位 月額40,000円~50,000円 |
|---|
| 地目 | 住宅用地 |
|---|
| 現狀 | 空房 |
|---|
| 管理費 | 17030円 |
|---|
| 修繕公積金 | 43230円 |
|---|
| 交屋時期 | 洽詢 |
|---|
| 設備 | 2024年7月リノベーション完了、エレベーター、オートロック、宅配ボックス、LDに床暖房、ホテルライクな内廊下設計、ペット飼育可(2匹まで・ペットクラブ会費月額500円・規約有)、事務所使用不可、 駐輪場:空有(200円/月) 、バイク置場:空有(1,000円/月) |
|---|
| 交易方式 | 媒介 |
|---|
| 房產編號 | K105 |
|---|
| 資訊登錄日 | 2024年07月26日 |
|---|
| 資訊更新日 | 2024年11月21日 |
|---|


